Новостройка на продажу - Объект №4225

Заводская ул.

Объект № 4225

Новостройка 15 000 000 ₽

Саки, Не указан, Заводская ул.

20260212_151849
254368
20250505_175128
20250505_180411
20260212_151858
20260402_140921
20260402_140929
20260402_141014
20260402_141028
20260402_141106
20260402_141311
20260402_141328
20260402_141402
20260402_141418
20260402_141842
глвн
планировка терасса
планировка

Юрий Васильевич

8 978 544-3939

Скачать PDF

При звонке назовите Объект № 4225, и мы быстрее найдем необходимую информацию!

Используйте удобный мессенджер и задайте вопрос

Характеристики объекта

  • Комнаты: Изолированные
  • Кол. ком.: 3
  • Сан. узел: Совмещенный
  • Кол. сан. уз.: 1
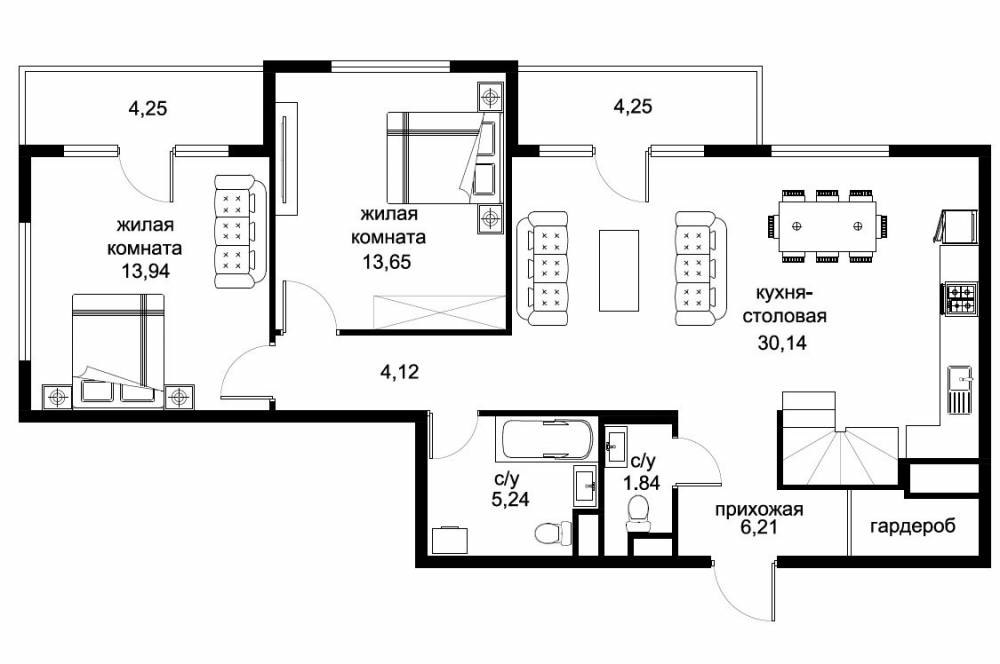
  • Площадь: 120/50/30
  • Расшифровка метража: 14;14;22
  • Этажность: 3/4
  • Ремонт: Предчистовая
  • Балкон: Балкон
  • Кол. балконов: 1
  • Горячая вода: Автономное
  • Материал стен: Монолитно-Кирпичный
  • Отопление: Автономное
  • Высота потолка: 3.00
  • Проект: Монолитно-Кирпичный
  • Водопровод: Магистраль
  • Год постройки: 2025 (1)

Описание

Продается 3-комнатная квартира в двух уровнях, с отдельным входом, в ЖК «Солнечный берег» – ваш идеальный дом у озера!

Подходит под семейную ипотеку!

Просторная и светлая 3-комнатная квартира с высокими потолками 3 метра, панорамными окнами и витражным остеклением наполнена естественным светом.
Второй уровень, как самостоятельная квартира площадью 40 м2 с отдельным входом и панорамным окном!

Современный жилой комплекс: автономное отопление, закрытый двор, управляющая компания.
Все виды господдержки и субсидирования.
Идеальное расположение, всего 7 минут пешком до набережной лечебного озера! Удобный выезд в сторону моря и Евпатории.
Чистый холст для ваших идей! Квартира представлена без отделки – вы сможете создать интерьер своей мечты!
Уникальная возможность приобрести квартиру в одном из самых перспективных жилых комплексов города.
Звоните прямо сейчас!

Не упустите шанс стать владельцем квартиры в ЖК «Солнечный берег». 

 

Подробная информация об объекте

Смотрите в нашей статье: ЖК Солнечный берег 2
ЖК «Солнечный берег» располагается в черте города Саки в экологически чистом регионе недалеко от моря.
Рядом находятся магазины, садик, школа, удобная транспортная развязка, физкультурно-оздоровительный комплекс, лечебное озеро.

Горячие предложения

Квартира 7 000 000 ₽
Саки, Не указан, Курортная ул.


Продается квартира в Саках
Большая светлая квартира в центре города. Идеальное расположение: в шаговой доступности Курортная набережная, лечебные санатории и...

Земельный участок 3 800 000 ₽
ПГТ Николаевка, Не указан, Ялтинская ул.

Продается участок в пгт Николаевка!

Земельный участок размером 8 соток ИЖС.
На участке надежный фундамент для дома, заведен свет,...

Дом 4 600 000 ₽
село Михайловка, Не указан, Советская ул.

Продаётся дом в селе Михайловка!

Дом построен из камня ракушки, экологически чистого материала.
В доме 3 комнаты, отдельно стоящая...

Земельный участок 2 350 000 ₽
ПГТ Новофедоровка, Не указан, Лавандовая ул.

Продам участок в Новофедоровке возле моря!

До моря 800м!
Участок размером 6 соток.
Район активно застраивается!
Дополнительно оплачивается...

Дом 10 900 000 ₽
село Орехово, Не указан, Виноградная ул.

Продам готовый дом в с. Орехово!

Продам одноэтажный дом 61/42/7.2 кв. м на участке 14.68 сотки по улице Виноградная...

Земельный участок 12 000 000 ₽
ПГТ Новофедоровка, Не указан, Кирова ул.

Продам земельный участок у моря в пгт Новофёдоровка!

Продам земельный участок размером 14.6 соток для строительства жилого дома по...

Хотите скидку?
Подберем желаемый для вас объект недвижимости! https://cargo-avto.ru/about/avtopark/hyundai-porter/
Выбрано 0

Вы можете оставить телефон или email для скорейшей связи