Новостройка на продажу - Объект №2585

Лазурная ул.

Объект № 2585

Новостройка 10 420 000 ₽

Прибрежное, Не указан, Лазурная ул.

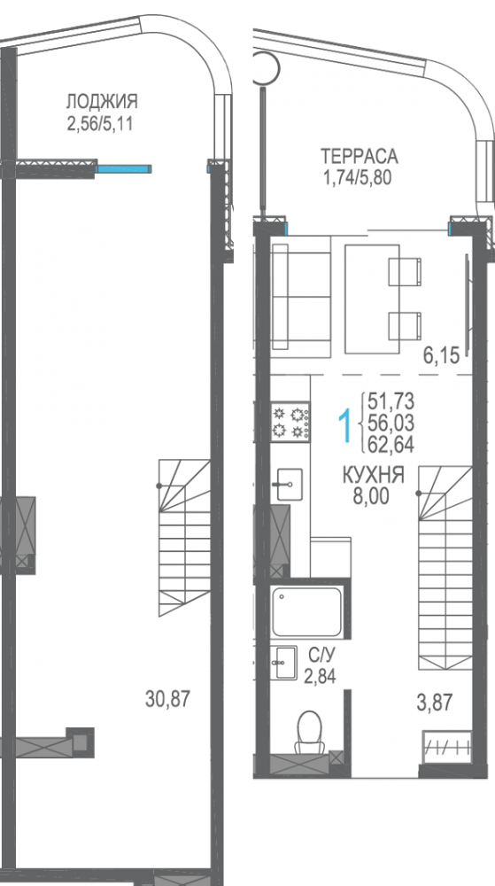
двухуровневая 351 дом6 9эт 62,64кв
сага 21
сага 38

Чубарова Евдокия

7978-544-39-39

Скачать PDF

При звонке назовите Объект № 2585, и мы быстрее найдем необходимую информацию!

Используйте удобный мессенджер и задайте вопрос

Характеристики объекта

  • Комнаты: Изолированные
  • Кол. ком.: 2
  • Сан. узел: Раздельный
  • Кол. сан. уз.: 1
  • Площадь: 62,64/37/8
  • Расшифровка метража: 6,15;30,87
  • Этажность: 8/9
  • Ремонт: Без отделки
  • Балкон: Балкон
  • Кол. балконов: 2
  • Горячая вода: Централизованная
  • Материал стен: Монолитно-Кирпичный
  • Отопление: Центральное
  • Высота потолка: 3.00
  • Проект: Монолитно-Кирпичный
  • Водопровод: Магистраль
  • Лифт: Да
  • Год постройки: 2025 (0)

Описание

Стоимость указана при 100% оплате! Подходит под семейную ипотеку с ребенком до 7 лет!

Продается квартира в Жилом комплексе САГА, в поселке Прибрежное, Крым. Море на расстоянии 200м.
Здесь вы сможете забыть о времени, наблюдая за игрой света на воде. Мерцающее море и таинственное розовое озеро создают неповторимую атмосферу.
Есть парковочные места на улице. Вид на море и розовое озеро.

После пляжного дня вам не придется долго искать, где припарковать машину. Комфорт начинается с мелочей, а продолжается великолепными пейзажами.
Воплотите в жизнь свою самую заветную мечту о доме у моря. Это место создано для счастья и умиротворения.

Подробная информация об объекте

Смотрите в нашей статье: Жилой квартал САГА К6

Жилой квартал САГА находится на западном побережье Крыма между Саками и Евпаторией, в экологически чистом месте на косе между Чёрным морем и озером Сасык-Сиваш, рядом с лечебными грязевыми лиманами.

Комфортные зоны отдыха!

Приватные дворы комплекса предлагают тенистые беседки и прогулочную площадь с арт-объектами.
Для детей будут построены современные игровые комплексы.
Доступ в дома по смарт-картам обеспечивает максимальный комфорт. Уличный стрит-ритейл с кафе и ресторанами оживляет пространство, а комплексное озеленение с автополивом украшает территорию.

Разнообразные фасады и этажность зданий формируют уникальный облик улиц.
Остекление выполнено в алюминиевом профиле, а квартальная застройка защищает дворы от случайных гостей, создавая уют.

Став резидентом Жилого квартала САГА, вы получаете не просто жильё...

Горячие предложения

Квартира 6 500 000 ₽
ПГТ Новофедоровка, Не указан, Героев ул.


Продается 2-комнатная квартира в Новофедоровке
Продается современная 2-комнатная квартира общей площадью 62 кв.м. на 3 этаже в 5-этажном доме.
Ключевые...

Земельный участок 1 550 000 ₽
село Владимировка, Не указан, Северная ул.

Земельный участок в с. Владимировка!

Участок прямоугольный, правильной формы, фасад 25 метров.
Назначение: для индивидуального жилищного строительства.
Электричество, вода...

Квартира 6 200 000 ₽
село Фрунзе, Не указан, Восточный пер.

Продам 2 ком. квартиру в с. Фрунзе, Сакский район!
Эксклюзивная продажа!

Квартира со свежим евро ремонтом натяжные потолки, ламинат,...

Квартира 7 800 000 ₽
Саки, Не указан, Курортная ул.


Продается квартира в Саках
Большая светлая квартира в центре города. Идеальное расположение: в шаговой доступности Курортная набережная, лечебные санатории и...

Дача 3 300 000 ₽
ПГТ Новофедоровка, Не указан, Объездная ул.

Продам дачу в Новофёдоровке!

Продам дачу общей площадью 69.8 кв.м, жилое 5.4 кв.м, кухня 3.2 кв. м на участке...

Земельный участок 2 380 000 ₽
ПГТ Новофедоровка, Не указан, Лавандовая ул.

Продам участок в Новофедоровке возле моря!

До моря 800м!
Участок размером 6 соток.
Район активно застраивается!
Дополнительно оплачивается...

Хотите скидку?
Подберем желаемый для вас объект недвижимости! https://cargo-avto.ru/about/avtopark/hyundai-porter/
Выбрано 0

Вы можете оставить телефон или email для скорейшей связи