Новостройка на продажу - Объект №3091

Парковая ул.

Объект № 3091

Новостройка 5 940 350,00 ₽

Мирное, Не указан, Парковая ул.

2 (2)
главная
лот 115

Виктория Инзарцева

8 978 544-3939

Скачать PDF

При звонке назовите Объект № 3091, и мы быстрее найдем необходимую информацию!

Используйте удобный мессенджер и задайте вопрос

Характеристики объекта

  • Комнаты: Изолированные
  • Кол. ком.: 1
  • Сан. узел: Совмещенный
  • Кол. сан. уз.: 1
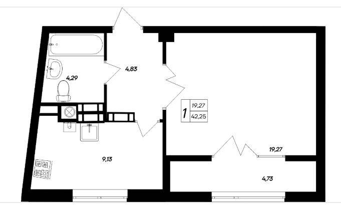
  • Площадь: 42,25/14/6
  • Расшифровка метража: 14,28
  • Этажность: 7/9
  • Ремонт: Без отделки
  • Балкон: Балкон
  • Кол. балконов: 1
  • Горячая вода: Автономное
  • Материал стен: Монолитно-Кирпичный
  • Отопление: Автономное
  • Высота потолка: 2.50
  • Проект: Монолитно-Кирпичный
  • Водопровод: Магистраль
  • Год постройки: 2027 (-1)

Описание

Жилой комплекс расположен в активно развивающемся районе Симферополя.

Это экологически чистая местность с удобной транспортной развязкой.
Строгие формы, лаконичный дизайн и динамичные акценты. Элегантная колоннада между зданиями словно обрамляет территорию, замыкает ее, тем самым создает приватность и уют.
В домах предусмотрены встроенные коммерческие помещения. Прекрасно развитая инфраструктура и продуманные планировки позволят вести бизнес, не отвлекаясь на нюансы.
Это лучший выбор для тех, кто ищет баланс между городским комфортом крымской столицы и спокойным ритмом уютного района. Удобная транспортная развязка даёт возможность быстро выехать на федеральную трассу Таврида.
Отсюда можно с лёгкостью добраться на автомобиле в любую точку Симферополя.

Подробная информация об объекте

Смотрите в нашей статье: ЖК Парковые кварталы 1

Жилой комплекс расположен в активно развивающемся районе Симферополя.

Это экологически чистая местность с удобной транспортной развязкой. Строгие формы, лаконичный дизайн и динамичные акценты.
Элегантная колоннада между зданиями словно обрамляет территорию, замыкает ее, тем самым создает приватность и уют.

В домах предусмотрены встроенные коммерческие помещения. Прекрасно развитая инфраструктура и продуманные планировки позволят вести бизнес, не отвлекаясь на нюансы.
Это лучший выбор для тех, кто ищет баланс между городским комфортом крымской столицы и спокойным ритмом уютного района.
Удобная транспортная развязка даёт возможность быстро выехать на федеральную трассу Таврида.
Отсюда можно с лёгкостью добраться на автомобиле в любую точку Симферополя.

Горячие предложения

Квартира 6 200 000 ₽
село Фрунзе, Не указан, Восточный пер.

Продам 2 ком. квартиру в с. Фрунзе, Сакский район!
Эксклюзивная продажа!

Квартира со свежим евро ремонтом натяжные потолки, ламинат,...

Земельный участок 3 800 000 ₽
ПГТ Николаевка, Не указан, Ялтинская ул.

Продается участок в пгт Николаевка!

Земельный участок размером 8 соток ИЖС.
На участке надежный фундамент для дома, заведен свет,...

Дом 14 000 000 ₽
ПГТ Николаевка, Не указан, Колхозная ул.

Продам новый большой дом в курортном поселке городского типа Николаевка!

Продам 2х этажный дом общей площадью 224.6 кв.м, жилое...

Дом 10 900 000 ₽
село Орехово, Не указан, Виноградная ул.

Продам готовый дом в с. Орехово!

Продам одноэтажный дом 61/42/7.2 кв. м на участке 14.68 сотки по улице Виноградная...

Земельный участок 12 000 000 ₽
ПГТ Новофедоровка, Не указан, Кирова ул.

Продам земельный участок у моря в пгт Новофёдоровка!

Продам земельный участок размером 14.6 соток для строительства жилого дома по...

Дача 3 300 000 ₽
ПГТ Новофедоровка, Не указан, Объездная ул.

Продам дачу в Новофёдоровке!

Продам дачу общей площадью 69.8 кв.м, жилое 5.4 кв.м, кухня 3.2 кв. м на участке...

Хотите скидку?
Подберем желаемый для вас объект недвижимости! https://cargo-avto.ru/about/avtopark/hyundai-porter/
Выбрано 0

Вы можете оставить телефон или email для скорейшей связи