Новостройка на продажу - Объект №3058

Парковая ул.

Объект № 3058

Новостройка 10 923 720,00 ₽

Мирное, Не указан, Парковая ул.

главая
лот 107

Юлия Романенко

8 978 544-3939

Скачать PDF

При звонке назовите Объект № 3058, и мы быстрее найдем необходимую информацию!

Используйте удобный мессенджер и задайте вопрос

Характеристики объекта

  • Комнаты: Изолированные
  • Кол. ком.: 3
  • Сан. узел: Совмещенный
  • Кол. сан. уз.: 1
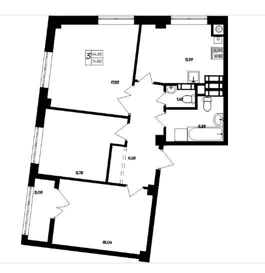
  • Площадь: 74,82/44/9
  • Расшифровка метража: 17,53;11,78;15,04
  • Этажность: 6/9
  • Ремонт: Без отделки
  • Балкон: Балкон
  • Кол. балконов: 1
  • Горячая вода: Автономное
  • Материал стен: Монолитно-Кирпичный
  • Отопление: Автономное
  • Высота потолка: 2.50
  • Проект: Монолитно-Кирпичный
  • Водопровод: Магистраль
  • Год постройки: 2027 (-1)

Описание

ЖК Парковые кварталы расположен в активно развивающемся районе Симферополя.

Это экологически чистая местность с удобной транспортной развязкой.
Строгие формы, лаконичный дизайн и динамичные акценты. Элегантная колоннада между зданиями словно обрамляет территорию, замыкает ее, тем самым создает приватность и уют.
В домах предусмотрены встроенные коммерческие помещения. Прекрасно развитая инфраструктура и продуманные планировки позволят вести бизнес, не отвлекаясь на нюансы.
Это лучший выбор для тех, кто ищет баланс между городским комфортом крымской столицы и спокойным ритмом уютного района. Удобная транспортная развязка даёт возможность быстро выехать на федеральную трассу Таврида.
Отсюда можно с лёгкостью добраться на автомобиле в любую точку Симферополя.

Подробная информация об объекте

Смотрите в нашей статье: ЖК Парковые кварталы 1

Жилой комплекс расположен в активно развивающемся районе Симферополя.

Это экологически чистая местность с удобной транспортной развязкой. Строгие формы, лаконичный дизайн и динамичные акценты.
Элегантная колоннада между зданиями словно обрамляет территорию, замыкает ее, тем самым создает приватность и уют.

В домах предусмотрены встроенные коммерческие помещения. Прекрасно развитая инфраструктура и продуманные планировки позволят вести бизнес, не отвлекаясь на нюансы.
Это лучший выбор для тех, кто ищет баланс между городским комфортом крымской столицы и спокойным ритмом уютного района.
Удобная транспортная развязка даёт возможность быстро выехать на федеральную трассу Таврида.
Отсюда можно с лёгкостью добраться на автомобиле в любую точку Симферополя.

Горячие предложения

Квартира 7 000 000 ₽
Саки, Не указан, Курортная ул.


Продается квартира в Саках
Большая светлая квартира в центре города. Идеальное расположение: в шаговой доступности Курортная набережная, лечебные санатории и...

Земельный участок 3 800 000 ₽
ПГТ Николаевка, Не указан, Ялтинская ул.

Продается участок в пгт Николаевка!

Земельный участок размером 8 соток ИЖС.
На участке надежный фундамент для дома, заведен свет,...

Дом 4 600 000 ₽
село Михайловка, Не указан, Советская ул.

Продаётся дом в селе Михайловка!

Дом построен из камня ракушки, экологически чистого материала.
В доме 3 комнаты, отдельно стоящая...

Земельный участок 2 350 000 ₽
ПГТ Новофедоровка, Не указан, Лавандовая ул.

Продам участок в Новофедоровке возле моря!

До моря 800м!
Участок размером 6 соток.
Район активно застраивается!
Дополнительно оплачивается...

Дом 10 900 000 ₽
село Орехово, Не указан, Виноградная ул.

Продам готовый дом в с. Орехово!

Продам одноэтажный дом 61/42/7.2 кв. м на участке 14.68 сотки по улице Виноградная...

Земельный участок 12 000 000 ₽
ПГТ Новофедоровка, Не указан, Кирова ул.

Продам земельный участок у моря в пгт Новофёдоровка!

Продам земельный участок размером 14.6 соток для строительства жилого дома по...

Хотите скидку?
Подберем желаемый для вас объект недвижимости! https://cargo-avto.ru/about/avtopark/hyundai-porter/
Выбрано 0

Вы можете оставить телефон или email для скорейшей связи